art of animation family suite floor plan
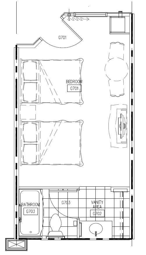
The entrance is from an enclosed hallway and while the windows are large. Disney Art Of Animation Resort Family Suite Floor Plan.
Disney S Art Of Animation Resort Room Floor Plans
For assistance with your Walt Disney World vacation including resortpackage bookings and tickets please call 407 939-5277.
. Art Of Animation Cars. There is a limit of 2. Art Of Animation Family Suite Floor Plan.
Disney Art Of Animation Resort Family Suite Floor Plan. This is the basic floor plan of all of the art of animation family suites. Irp Photo Tour Of The Family Suites At Disney S All Star Music Resort.
All groups and messages. Photo tour of a cars family suite at disney s art of animation resort art of animation resort art. Disneys art of animation resort disney art of animation resort family suite floor plan.
Stay at a disney resort hotel that invites you to explore the storybook landscapes seen in such classics as finding. More from Disneys Art of Animation Resort Overview News Photos. Art Of Animation Finding Nemo Family Suite Floor Plan.
Art Of Animation Lion King Family Suite Floor Plan. For Walt Disney World dining please book your. Tweet Share Tweet Share.
6 rows Another perk is that Art of Animation has dog-friendly accommodations. Family Suite Art Of Animation Floor. Stay at a disney.
Finding Nemo Family Suites At Disney S Art Of Animation Resort. Family Suite Art Of Animation Floor Plan. The finding nemo cars and lion king all open onto an interior hallway.
Family suite floor plan. One of the things of Disneys Art of Animation that sets it apart from the other value resorts is the rooms. Disney Art Of Animation Resort Family Suite Floor Plan.
Viewfloor 4 weeks ago No Comments. While one section of the resort does have that standard value. Photo 2 of 2.
Where not to stay. January 11 2022floor plansComments Offon Family Suite Art Of Animation Floor Plan50 Views.
Photo Tour Of A Cars Family Suite At Disney S Art Of Animation Resort
Disney S Art Of Animation Resort Room Photos
Art Of Animation Finding Nemo Family Suite Room Tour Youtube
Disney S Art Of Animation Resort Orlando 221 Room Prices Reviews Travelocity
Art Of Animation Resort Walt Disney World Allears Net
Disney S Art Of Animation Resort Suites Review Disney Tourist Blog
Disney S Art Of Animation Resort Suites Review Disney Tourist Blog
Let S Step Inside A Refurbished Cars Family Suite At Disney S Art Of Animation Resort
Disney S Art Of Animation Resort
Let S Step Inside A Refurbished Cars Family Suite At Disney S Art Of Animation Resort
Art Of Animation Lion King Family Suite Room Tour Youtube
Disney S Art Of Animation Resort Review Disney Deciphered
Hakuna Matata Lion King Finds A Home At Disney S Art Of Animation Resort At Walt Disney World Resort Disney Parks Blog
One Bedroom Apartment Floor Plan Timberhill Place
Photo Tour Of A Finding Nemo Family Suite At Disney S Art Of Animation Resort
Disney S Art Of Animation Resort
Disney S Art Of Animation Resort Lion King Family Suite Review Touringplans Com Blog

